Overview

  • R4975219
  • Property ID
  • Land, Plot
  • Property Type
  • 0
  • Bedroom
  • 0
  • Bathroom

Description

Nestled in a prestigious gated community, this south-facing plot offers a rare chance to build a luxury villa in the heart of Nueva Andalucía’s Golf Valley. Surrounded by world-class golf courses and upscale residences, the location ensures both exclusivity and security.

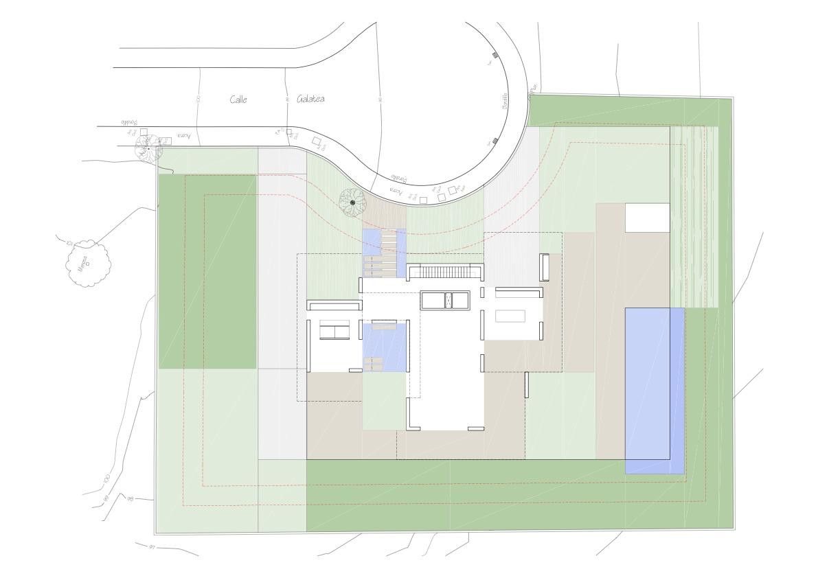
With UE-3 zoning regulations, the 800 m² plot allows for a 317 m² villa spread over two levels, including a rooftop terrace and basement, plus 100 m² of outdoor terraces for seamless indoor-outdoor living. A carport for two vehicles is also included in the plans.

A building license is already in process, expediting the construction timeline for those looking to create a custom dream home or secure a high-value investment.

Summary:
Prime south-facing plot in a secure, gated community in Nueva Andalucía’s Golf Valley
UE-3 zoning, allowing a spacious villa with 20% buildability on an 800 m² minimum plot
Building license in progress for a two-level villa with rooftop terrace and basement
Generous layout with 317 m² of interior space plus 100 m² of outdoor terraces
Includes a carport for two vehicles for added convenience
Close to world-class golf courses and just minutes from Puerto Banús
Exclusive neighborhood with 24-hour security and premium surroundings
Full project details available upon request for serious buyers

Don’t miss this unique opportunity

Address

Contact Information

Enquire About This Property

Compare listings

Compare

George Radford

George Radford, 32 years old and from London. Co-founder and director of Bellingtons Property Group. George describes him as a hardworking, enthusiastic and determined young entrepreneur. George decided to co-found Bellingtons Property Group to be a part of something that is meaningful, impactful and helps others. Not content on letting his clients settle for mediocracy, George is someone that sets goals and helps his clients achieve them.

With family ties in the Marbella area for more than 30 years, George has lived and worked here for many years accumulating invaluable first-hand knowledge and connections that he can pass on to benefit his clients. When asked how George would describe his clientele, he says “My wonderfully diverse clients are great! From finance to tech, elite sport to medicine, working with such a broad range of professionals is so enjoyable”. George has experience when it comes to selling every type of property. Working with first time buyers to luxury homes, he values providing an unparalleled service that he can be proud of.

 What clients appreciate most when working with George is his laid back, low pressured and patient approach with them yet tenacious attitude and commitment on their behalf. George feels strongly that his ability to listen and comprehend his clients demands is what helps him build such strong client relationships.

Sam Bobes Gilroy

As a native Andalusian with a British heritage, Sam is a fluent English and Spanish speaker who has lived his in Marbella for 30 years. Sam has been one of the most influential individuals in the Real Estate sector for the last 8 years, gaining invaluable experience along the way whilst working for several leading brand name agencies before co-founding Bellingtons Property Group.

Sam brings extensive industry experience to the team, allowing him to advise his international clients complete solution to fulfil their needs, whilst streamlining the whole process whether it be buying or selling. He’s obtained a very strong real estate network during his early successful career and prides himself on his excellent local knowledge, setting his clients up for success.

Pelayo Gomez Picó

Pelayo is the co-founder and partner of Bellingtons Property Group. A graduate from Richmond, The American University in London with BSc Honours in Business Management & Finance, Pelayo is highly acquainted with corporate planning, risk management whilst having strong negotiation, communication, and quantitative skills.

He has ample experience dealing with high-net-worth clients while he excelled working for a boutique hedge fund in London, assigned to the derivatives desk where he focused on Options Trading in US markets. With his diverse background, as well as being born and raised in Marbella, Pelayo has brought another dimension to the ethos of the company.

Pelayo speaks three languages: English, German, and his native tongue, Spanish.